- Fri Aug 20, 2010 5:37 am
#329177
Hi all,
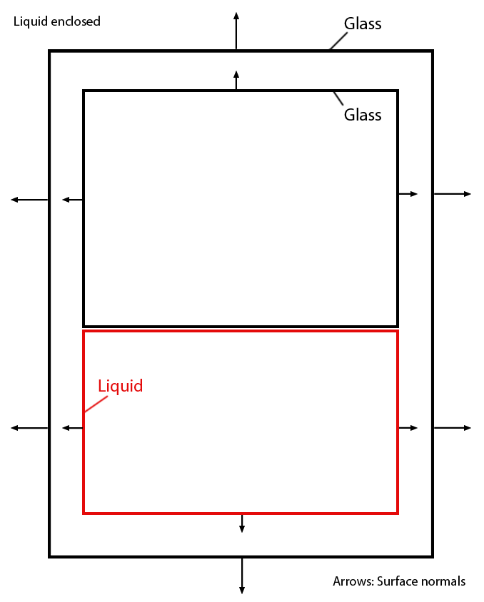
I need to do a liquid (opaque) in an enclosed glass box.
Is this what i need to do? (See below for the image)
And to render this, which i always have the problem that is it will take quite an extreme
rendering time to clear away the noise because of glass material. So shall i use HDRI in IBL or the normal light planes to do the lighting? What are the pros and cons of either way?
I saw an image in the Maxwell home showing some fruits in multi-color glass materials and they were rendered so clean without noise, was wondering how was that achieved. Extreme long rendering hour? : (

I need to do a liquid (opaque) in an enclosed glass box.
Is this what i need to do? (See below for the image)
And to render this, which i always have the problem that is it will take quite an extreme
rendering time to clear away the noise because of glass material. So shall i use HDRI in IBL or the normal light planes to do the lighting? What are the pros and cons of either way?
I saw an image in the Maxwell home showing some fruits in multi-color glass materials and they were rendered so clean without noise, was wondering how was that achieved. Extreme long rendering hour? : (
